潜水轴流泵QZB系列厂家报价
潜水轴流泵QZB系列厂家报价
产品价格:¥1(人民币)
  • 规格:500QZB-70
  • 发货地:天津津南区
  • 品牌:
  • 最小起订量:1台
  • 免费会员
    会员级别:试用会员
    认证类型:企业认证
    企业证件:通过认证

    商铺名称:天津中蓝泵业有限责任公司

    联系人:赵立增(先生)

    联系手机:

    固定电话:

    企业邮箱:07@tjzhonglan.cn

    联系地址:津南经济开发区(东区)中兴道15号

    邮编:300350

    联系我时,请说是在口碑仪器网上看到的,谢谢!

    商品详情

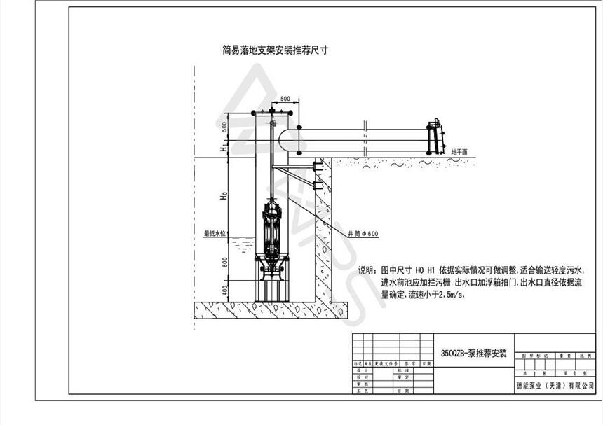
               立式轴流泵

       

      天津中蓝泵业有限责任公司位于天津市津南区津南经济开发区,是一家集生产制造、技术研发、项目设计为一体的大型泵类企业,占地面积达20000平方米,厂房内备有大型试验台。我们的质量目标是向德国制造业学习,努力学习他们严谨的、近乎吹毛求疵的质量理念,俗话说眼见为实、耳听为虚,如果用户选择我们的产品,只要您有时间来天津,我们保证让您亲眼看到产品的实验。中蓝人以质量为生命,以市场需求为己任不断改革创新,完善售后服务水平,引用中蓝泵业董事长的一句话:“卖出产品,仅仅是我们服务的开始”中蓝人以此作为创业的信条与广大用户携手共创辉煌。



      关于产品

      轴流泵的性能特点:

      轴流泵主要是靠叶片的升力将流体引到出口,是轴向进,轴向出,具有流量大等长处。

          1、潜水轴流泵:驱动水泵的电动机是干式全封闭潜水三相异步电动机,能够长时间浸入水中运转,具有传统机组一系列无与伦比的长处。

          2、因为电机与水泵构成一体,无须在装置现场进行耗工、耗时的电机、传动机构、水泵轴线对中的安装工序,现场装置便利、快速。

          3、因为潜入水中运转,能够大大简化泵站的土建及建筑结构工程,减少装置面积,节省工程造价30~40%。

          4、噪声低,泵站内无高温,改进操作环境,可按要求建满足地下泵站,坚持地上的环境面貌。

          5、潜水电机采用两层或三重机械密封,F级(耐温155。C)绝缘,防护等级为IP68(IEC)。在水力模型方面,我们吸收了国内外同类产品的长处,采用国际上最先进的变环量、变轴面速度升力法,独立规划的高效节能、抗汽蚀性能好的新式水力发电模型。牢靠性高,且与传统水泵具有互换性,便于用户选型、运用。

      6、操作便利,易于实现遥控和自动控制。



      轴流泵的参数:

      1、采用该型潜水电泵是处理水位涨落大的沿江、湖泊地区建泵站来防洪的最完全的方法,且省去机泵间的长轴和中心轴承,使机组运转更为牢靠。

      2、轴流泵叶轮装有2~7个叶片,在圆管形泵壳内旋转。叶轮上部的泵壳上装有固定导叶,用以消除液体的旋转运动,使之变为轴向运动,并把旋转运动的动能转变为压力能。

      3、轴流泵通常是单级式,少数制成双级式。

      4、流量范围很大,为180~360万立方米/时;扬程一般在20米以下。反之流量小时,扬程会达20米以上。

      5、轴流泵一般为立式,叶轮浸没在水下面,也有卧式或斜式轴流泵。小型轴流泵的叶轮安装位置高出水面时,需要用真空泵排气引水启动。轴流泵的叶片分固定式和可调式两种结构。大型轴流泵的使用工况(主要指流量)在运行中常需要作较大的变动,调节叶片的安装角可使泵在不同工况下保持在高效率区运行。小型泵的叶片安装角一般是固定的。轴流泵属于动力式泵中比转数最高的一种,比转数为 500~1600。泵的流量-扬程、流量-轴功率特性曲线在小流量区较陡,故应避免在这一不稳定的小流量区运行。轴流泵在零流量时的轴功率最大,因此泵在启动前必须先打开排出管路上的阀,以减小启动功率。轴流泵主要适用于低扬程、大流量的场合,如灌溉、排涝、船坞排水、运河船闸的水位调节,或用作电厂大型循环水泵。扬程较高的轴流泵(必要时制成双级)可供浅水船舶的喷水推进之用。


      关于服务

      1我公司提供的免费售前服务

      ①、免费设计方案:根据客户对产品的要求以及用途,为客户提供选型、报价以及为客户提供安装方案和安装尺寸图。

      ②、免费考察现场:由于部分客户对产品及安装方式的不了解或无法描述现场具体情况,

      对此我公司提供免费的勘察现场服务,避免选型或安装方式出现错误给客户造成不必要的麻烦和损失。

      2我公司提供的免费售后服务

      技术指导安装及服务:因部分客户对现场产品安装不太了解,而造成的不必要麻烦,于是我公司提供免费的电话指导安装(如需到现场指导按时间收费)。

      我们拥有大型室外试验台,在相关电力条件允许范围内,我们可以每台泵都做出水实验,保证水泵性能参数达标。质量过硬、服务同行。

       

       

      以上是简单的介绍我公司的产品,如有需求或者想进一步的了解我们的潜水泵敬请来电!期待您的青睐。

    0571-87774297