供应 电磁灶 电磁炉 电灶具 能效标准锅 测试锅 测试标准锅
供应 电磁灶 电磁炉 电灶具 能效标准锅 测试锅 测试标准锅
产品价格:¥¥700.00(人民币)
  • 规格:140-280
  • 发货地:佛山
  • 品牌:
  • 最小起订量:1台
  • 免费会员
    会员级别:试用会员
    认证类型:未认证
    企业证件:未通过
    认证信息:未认证

    商铺名称:佛山市顺德区威纳仪表仪器有限公司

    联系人:李生(先生)

    联系手机:

    固定电话:

    企业邮箱:geryli@163.com

    联系地址:佛山市顺德区容桂红旗中路

    邮编:528305

    联系我时,请说是在口碑仪器网上看到的,谢谢!

    商品详情

      标准锅简介:

      本公司销售的电磁灶能效标准锅是根据GB21456-2008《家用电磁灶能效限定值及能源效率等级》有关平底标准锅及锅盖的要求制作。主要用于考核评定电磁灶能效限定值及能源效率等级的试验器具。

       

      技术要求:

      1.锅及锅盖材质主要是Q235,碳的质量分数<0.08%;

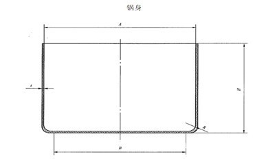
      2.锅盖材料厚度为1mm,锅身厚度t见附图;

      3.锅身底部不能向外凸,底部最大凹度为0.6%倍有效直径;

      4.锅身及锅盖表面要光洁,并作沙光防锈表面处理;

       

      a锅身尺寸:

      代号

      A/mm

      B/mm

      H/mm

      t/mm

      容积/L

      B1

      Φ140

      Φ120

      75

      1.5

      1

      B2

      Φ200

      Φ180

      95

      1.5

      3

      B3

      Φ220

      Φ200

      110

      1.5

      4

      B4

      Φ280

      Φ260

      105

      2.0

      6

      b.锅盖尺寸

       



      代号

      A/mm

      B/mm

      C/mm

      t/mm

      B1

      Φ82

      Φ126

      Φ146

      1.0

      B2

      Φ142

      Φ186

      Φ206

      1.0

      B3

      Φ162

      Φ206

      Φ226

      1.0

      B4

      Φ222

      Φ266

      Φ286

      1.0

       

       

    0571-87774297